Description
spécification
Description
Caractéristiques
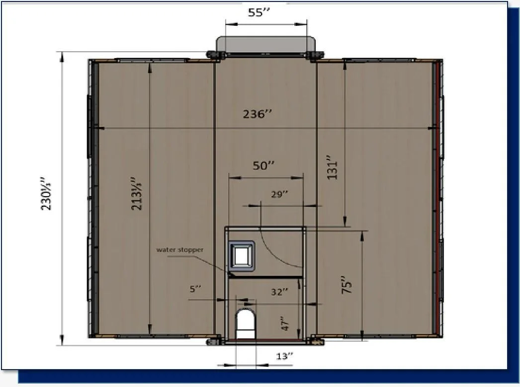
Dimension L19xW20xH8 (après extension), 380 pieds carrés
Taille de la porte de la salle de bain L28,4″ x H77,2″
Structure du cadre
Structure à ossature d’acier
Panneau mural en mousse ignifuge
Charge de neige 40 lb/pi²
Charge de vent 70 milles/heure
Toit
Toit d’isolation thermique en mousse ignifuge aluminium magnésium manganèse
Sol
Sol en verre magnésium
Cuir de sol stratifié résistant à l’usure de 0,08 pouce
Valeur R
0,2 ~ 0,5 (m2·K/W)
Fenêtre
Fenêtre à treillis coulissant en verre trempé-plastique-acier double couche
fenêtre à l’extérieur de la salle de bain : fenêtre en verre plastique
Toilettes avec douche
support de rideau de douche, valve de douche, arroseur de douche, tringle de douche, siphon de sol, butée de porte : acier inoxydable.
rideau de douche : bâche
Porte-savon, brosse WC : Alliage d’aluminium
Bouchon d’eau, boîte miroir : PVC
Ventilateur d’extraction silencieux
Portes de sécurité
Porte principale : porte en aluminium avec serrure
Porte des toilettes : porte WPC + verre dépoli
Électricité
Besoin de configurer en plus
Vanne d’eau chaude et froide
Acier inoxydable Nuance 304
Raccords
Conduite d’eau chaude et froide PPR
Tuyau d’évacuation en PVC
Tuyau d’isolation
Installation
Renfort hydraulique : Pression 3000N
Roulement : 6204
Bloc poulie à charnière : 2000 lbs
Câble métallique : φ5 mm
Matériaux neutres de protection de l’environnement
Mastic neutre


















